
Молодая пара обратились к нам в студию с целью обустроить свою новую квартиру в в ЖК “Riverside”. Они хотели чтобы квартира со временем превратилась в уютное семейное гнёздышко, но при этом осталась современным и уютным местом для проведения встреч в шумной компании.
- Объединение лоджии с комнатой
- Дополнительные обогреватели
- Канальная система кондиционирования
- Эргономичная кухня в гостиной
- Атмосфера мягкого уюта
- Скрытая зона хранения
Объединение лоджии с комнатой

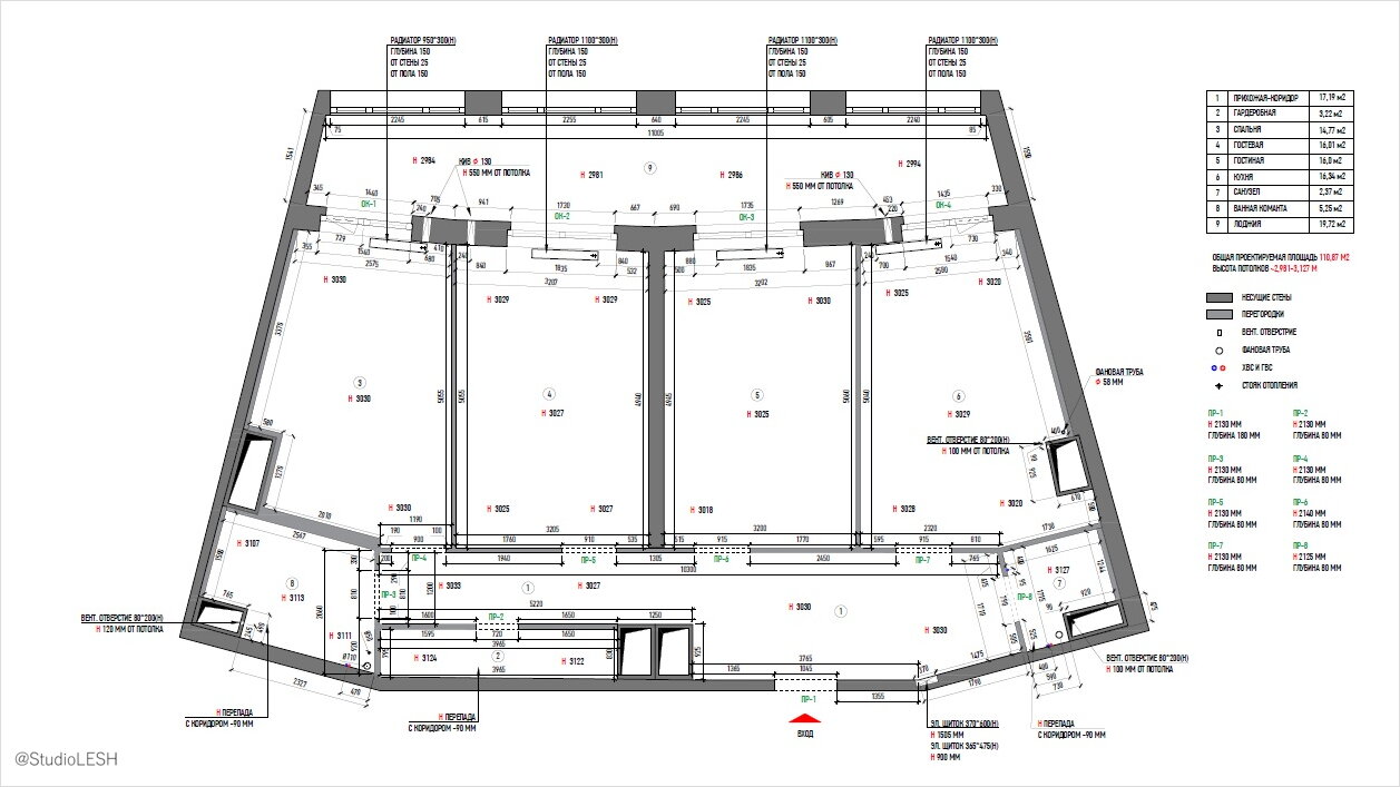
Квартира от застройщика представляла собой трехкомнатную квартиру с большой лоджией, которая протянулась от начала до конца квартиры. Молодые люди были готовы к перепланировке и хотели больше пространства в гостиной и спальне.

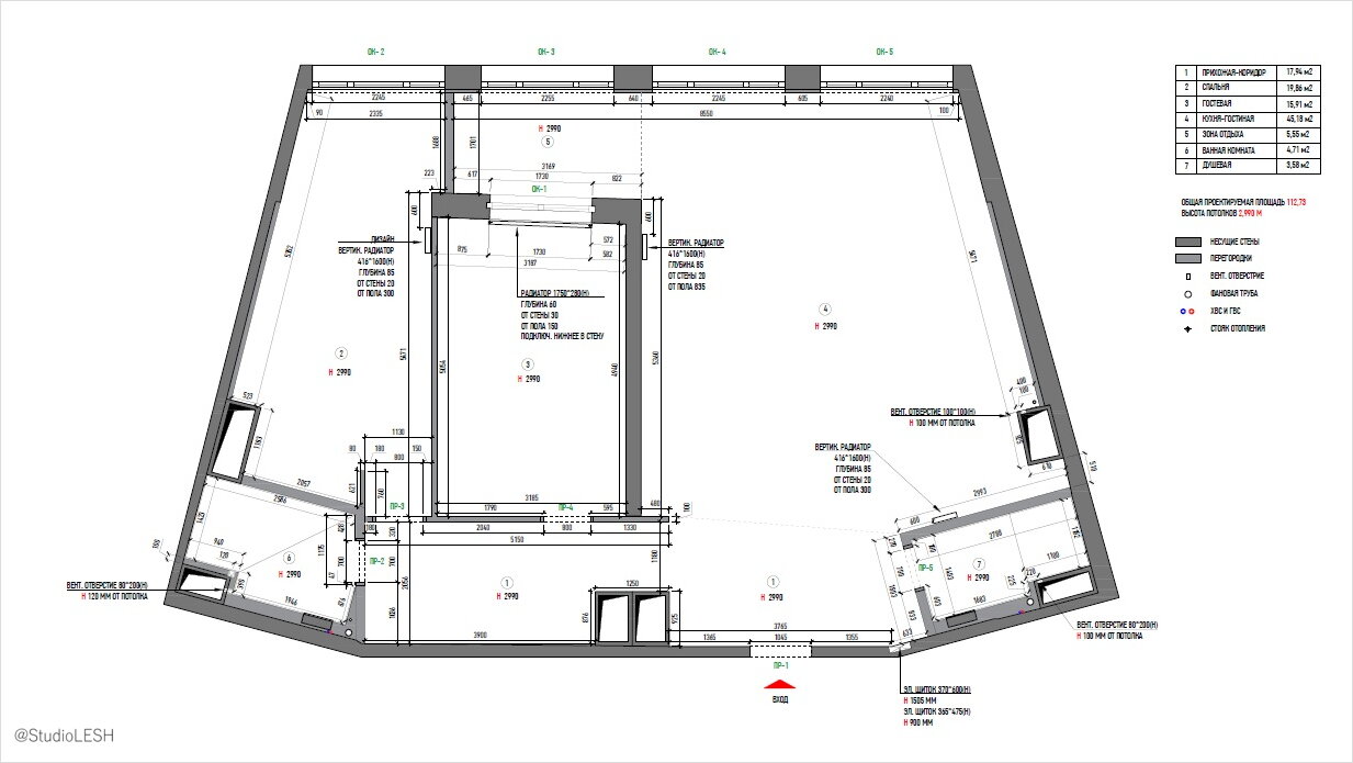
Обсудив с ними варианты планировки мы пришли к кардинальному решению для увеличения пространства во всей квартире — убрать стену между гостиной и лоджией.

Также была убрана перегородка между гостиной и кухней для создания единого пространства. Таким образом получилась большая совмещенная гостинная с кухней и отдельной обеденной зоной, и даже уголок для зоны отдыха.
Дополнительные обогреватели

Так как была убрана теплая стена, а между улицей и квартирой установили только теплое остекление, возникла необходимость добавить дополнительные источники тепла. Для этого были нужны дополнительные электрические радиаторы, которые распределены равномерно по квартире для поддержания комфортной температуры.
Для гармонии в визуальной композиции квартиры, были установлены вертикальные электрические радиаторы больше напоминающие декорации нежели обогревательные элементы, что позволило размещать их на видных местах по всей квартире.
Канальная система кондиционирования

Заказчиков также беспокоил вопрос о том, как контролировать комфортную температуру во время разных сезонов.
Решением стала канальная система кондиционирования, в которой внутренней скрытый блок с помощью вентиляторов распределяет холодный и теплый воздух по всем комнатам через специальные воздуховоды.
Высокие потолки позволили установить подобную систему и таким образом обеспечить комфортную температуру во всей квартире.
Эргономичная кухня в гостиной

Пространство кухни-гостиной получилось достаточно большим, чтобы установить кухонный остров. Данный предмет интерьера отделил зону готовки и сделал плавный переход в зону гостиной. С его помощью кухня получилась компактной и аккуратной, что гармонирует также с образом жизни наших заказчиков.
Кухонный остров здесь используется как дополнительная столешница для готовки. Он сделан из кварцевого агломерата под мрамор, что обеспечивает долговечность и подчеркивает статус. Также в остров встроены шкафы для размещения дополнительной кухонной утвари, которую хозяева используют, когда приходит много гостей.
Атмосфера мягкого уюта

Одним из пожеланий заказчиков было формирование в спальне мягкого уюта, но без излишних деталей. Их выбор остановился на кровати с мягким изголовьем состоящим из неровных геометрических фигур, обтянутая мягким материалом “Вельвет люкс”.

Также в спальне была организована так называемая мягкая зона, пространство под которую появилось благодаря увеличению комнаты за счет лоджии, где появился туалетный столик хозяйки и зеркало в полный рост.
Скрытая зона хранения

Помимо спальни была выделена гостевая комната, где расположился уютный диван и рабочее место. В будущем заказчики планируют сделать из неё детскую, а сейчас эта комната будет выполнять функции гостевой спальни или кабинета.
Во время обсуждения дизайн-проекта, было решено не делать отдельную комнату для хранения вещей, поэтому возникла необходимость в наличии большого количества вместительных шкафов.

В данной комнате получилась самая большая и в то же время самая незаметная зона хранения, так как здесь установлены шкафы в длину всей стены и от пола до потолка. Интересным элементом является ниша под рабочее место с полками по бокам для размещения необходимых книг и документов.

