Проект в ЖК «Собрание» обещал быть очень интересным, заказчики отдавали предпочтение современной классике, их очень привлекали необычные сочетания. Квартира площадью 95 м кв была идеальным местом для создания и воплощения необычной концепции. Семейная пара хотела видеть лаконичность, интересную яркую мебель и сочетание разнообразных текстур. Дизайне постарался максимально удовлетворить их пожелания и при этом сделать стильный дизайн.

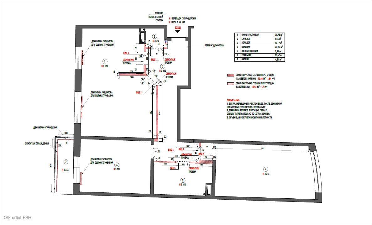
Работу мы начали с демонтажа стен. Было принято решение, что гостиная, кухня и прихожая станут одним пространством, которое будет делится на функциональные зоны, плавно переходящие друг в друга. В этом проекте дизайнер предложил оригинальный вариант зонирования пространства: при помощи монолитной композиции, состоящей из био-камина, встроенного шкафа под одежду и кухонного гарнитура. Композиция выполнена из одного материала, темный цвет наполняет пространство глубиной и задает ритм.

Зона кухни разделена на две части: светлую и темную. Темная часть это монолитная композиция, в нее встроена част мест хранения и бытовая техника. По задумке дизайнера светлая часть кухни сливается со стеной, таком образом весь кухонный гарнитур растворяется в интерьере. Минималистичный дизайн фасадов дает возможность для использования молдингов в качестве декора.

Обеденная группа состоит из массивного стола, который выполнен из слэба со вставкой из стекла. Использование дерева в интерьере — его своеобразная изюминка. Деревянные элементы делают интерьер ближе к природе, а оригинальность их использования подчеркивает профессионализм дизайнера.
Для максимального комфорта заказчиков во время приема пищи, стулья имеют мягкую тканевую обивку и удобный дизайн. Дизайн стульев максимально прост. Акцентный обеденный стол дополняется лаконичными и минималистичными элементами.

Гостиная представляет собой большую зону отдыха. Большой диван насыщенного синего цвета — акцент всего пространства. Он смотрится особенно броско на фоне контраста темных и светлых стен. Диван дополнен парой кресел современного дизайна и оригинальными столиками-пеньками. В этой зоне перекликаются большое количество разнообразных текстур, при этом все смотрится гармонично, каждый элемент дополняет другой.

Спальня выдержана в едином направлении с остальными помещениями, светлые стены с молдингами и яркие элементы обстановки. Акцент спальной зоны удобная кровать с большим тканевым изголовьем глубокого изумрудного цвета. Благородная ткань в сочетании с подвесными золотыми светильниками подчеркивает статус хозяев и изысканность дизайна. В тон обивке кровати было подобрано кресло у туалетного столика, который также декорирован золотыми элементами.

Ванная комната в этом проекте отличается от других, у дизайнера была цель сформировать пространство, в котором хочется проводить как можно больше времени. Поэтому в комнате располагается, как просторная душевая, так и отдельно стоящая ванная. Интерьер очень изысканный, он сочетает в себе аристократичность дерева и лаконичность стекла. Для дополнения общей композиции был разработан отдельный сценарий света, который акцентирует внимание на одном объекте или подчеркивает детали.

Изысканный интерьер возник из объединения классики, современного стиля и оригинальных идей дизайнера. Готовность заказчиков к экспериментам также сыграла большую роль, позволив дизайнеру использовать свой творческой потенциал.

